Storgatan 17 A

Storgatan 17 A lgh (1201)

Beskrivning

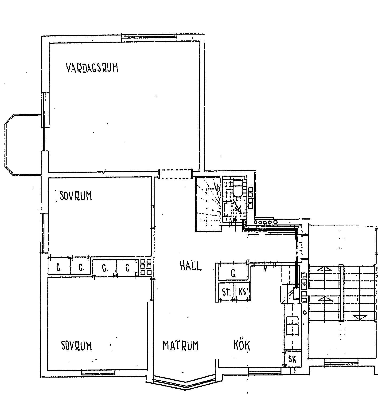
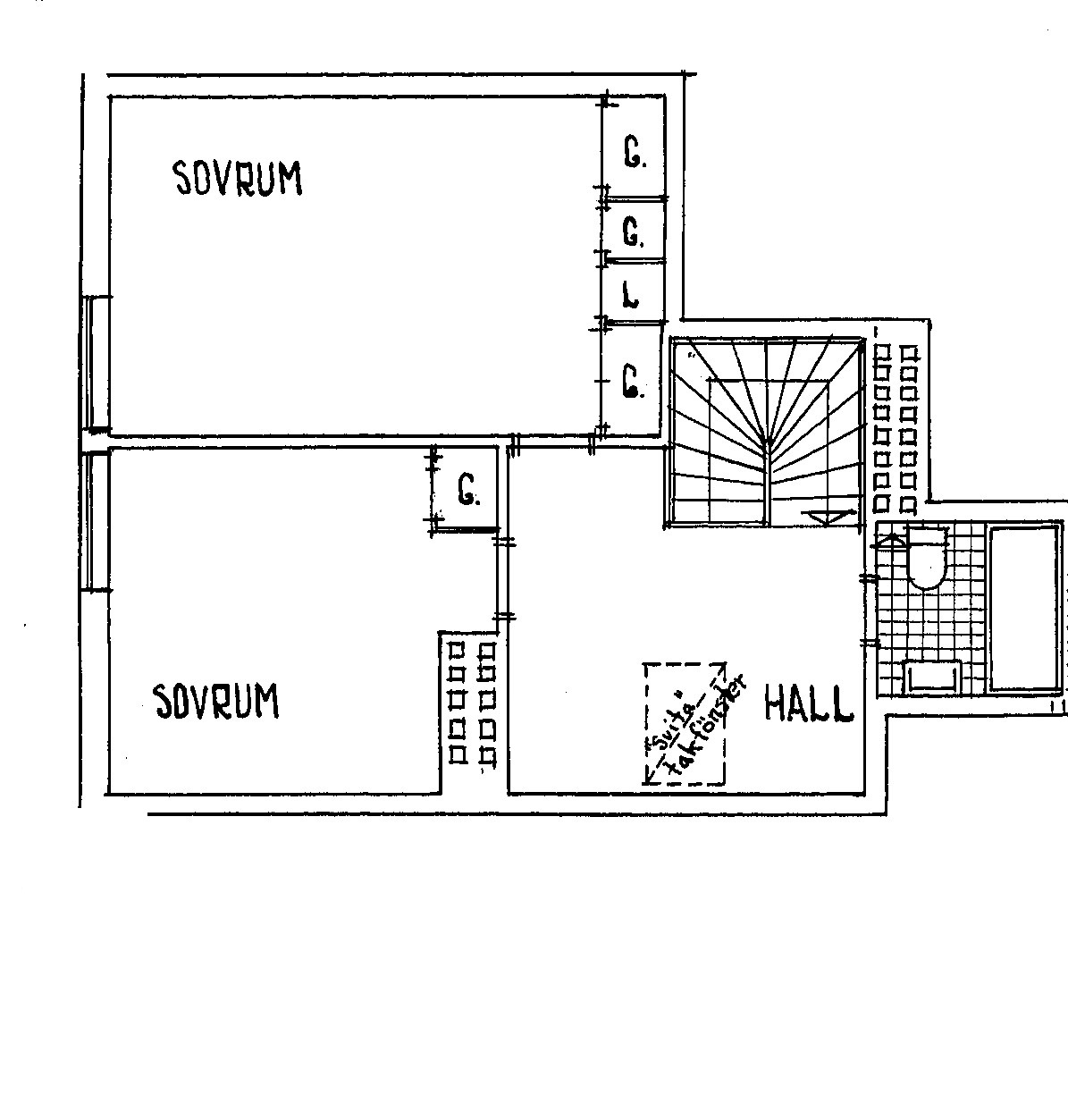
5 RoK – 127 kvm  – Norr, Katrineholm

Välkommen till en rymlig etage lägenhet på 5 rok, Badrum med wc på ovanvåning samt mindre wc botten våning. Lägenheten är på 127 kvm belägen på Norr i Katrineholm. Lägenheten ligger på våning 3 (3 tr) och erbjuder gott om utrymme för familj, arbete och umgänge.

Övrigt: Kall/varmvatten, uppvärmning och förråd ingår i hyran. Portkod, fiber, tvättmaskin, diskmaskin. Ca 5 minuter till tågstation, centrum.

Obs: Viss avvikelse kan förekomma på planlösning.

Du som söker ska uppfylla våra hyresvilkor och policy. Hyrespolicyn finns på länken nedan:

Läs gärna hyrespolicy: Hyrespolicy – Tegelstaden