Kyrkogatan 14 A

Kyrkogatan 14 A lgh 1201

Beskrivning

Ljus och renoverad 3:a med balkong på Norr – Kyrkogatan 14 A

Välkommen till denna trivsamma och smakfullt renoverade 3:a på eftertraktade Norr!
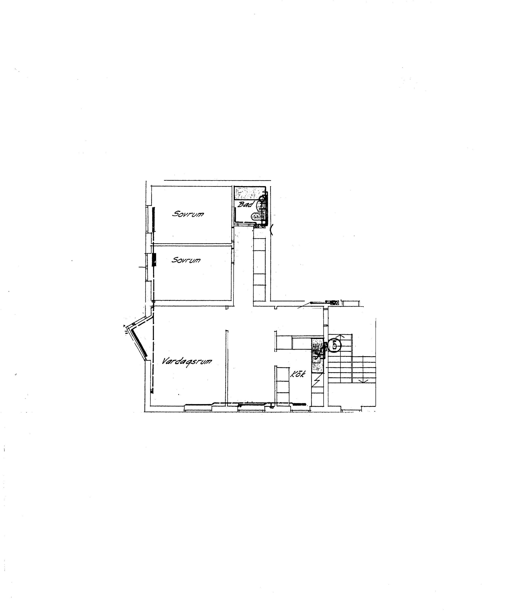
Lägenheten om 82 kvm erbjuder en genomtänkt planlösning med ljusa rum, generösa ytor och en härlig balkong.

Beskrivning
Lägenheten har nyligen renoverats med stilrena materialval och moderna ytskikt. Vardagsrummet bjuder in till både umgänge och avkoppling, med utgång till balkongen där du kan njuta av solen under varma dagar.
Två rymliga sovrum och ett fräscht badrum gör detta till ett hem som passar både par och små familjer.

Läget
Här bor du med närhet till både tågstation och centrum, vilket gör pendling och vardagsärenden smidiga. Området på Norr är populärt för sin charm, sina grönområden, med gångavstånd till allt du behöver.

Övrigt: portkod, tvättmaskin, fiber, balkong, vindsförråd, kall och varmvatten ingår i hyran.

Obs: Viss avvikelse kan förekomma på planlösning!

Du som söker ska uppfylla våra hyresvilkor och policy. Hyrespolicyn finns på länken nedan:

Läs gärna hyrespolicy: Hyrespolicy – Tegelstaden