Forssjögatan 1 B

Forssjögatan 1B, 1 R.O.K, Lgh 1001

Beskrivning

1  r.o.k som ligger på Forssjögatan 1B. Bostaden ligger i en mindre fastighet i ett trivsamt område på Öster. Närhet till matbutik, Kullbergska sjukhuset, skola, Stadsparken, ca 5 min gångavstånd till centrum och resecentrum.

Förråd, uppvärmning, kall- och varmvatten igår i hyran. Tvättstuga finns i fastigheten.

Adress: Forssjögatan 1B (1001)
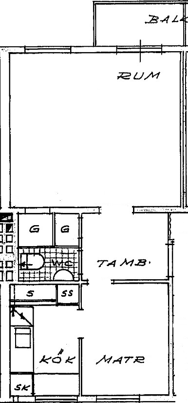
Övrigt: Fiber, balkong, matrum anslutning med kök.

Obs: Viss avvikelse kan förekomma på planlösning!

Du som söker ska uppfylla våra hyresvilkor och policy. Hyrespolicyn finns på länken nedan:
Läs gärna hyrespolicy: Hyrespolicy – Tegelstaden