4 rok Hantverkaregatan 7
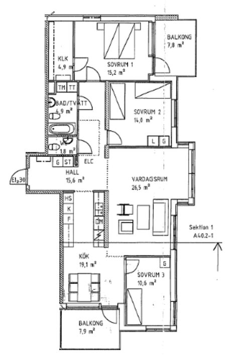
Stor och rymlig 4:a i centrala Katrineholm för dig 55+
Exklusivt boende med fyra rum och kök, beläget på fjärde våningen med härlig utsikt som du kan njuta av från den inglasade balkongen.
Lägenheten erbjuder gott om utrymme och rymmer alla bekvämligheter med modern utrustning som gör vardagen enkel och bekväm.
Adress: Hantverkaregatan 7
Övrigt: All bekvämligheter finns i lägenheten (Tvätt- & diskmaskin, torktumlare) Stort och rymlig badrum + en gäst toalett. Fiber. Dubbla inglasade balkonger. Garage finns i huset.
Du som söker behöver vara + 55 samt uppfylla Tegelstadedens hyresvillkor och hyrespolicyn.
Hyrespolicyn finns på länken nedan:
Läs gärna hyrespolicy: Hyrespolicy – Tegelstaden